金年会jinnianhuicom
院长信箱
WebVPN
安徽大江教育集团
旧版回顾
学院首页
金年会jinnianhuicom
现任领导
学院简介
校徽校训
办学定位
校园风光
历史沿革
管理机构
二级院系
机电工程学院
信息工程系
资源开发系
管理工程系
基础部
教育教学
招生就业
招生网
就业网
学生工作
党建思政
信息公开
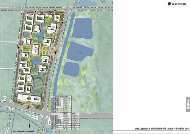
新校区建设
数字校园
融合门户
雨课堂
超星泛雅
新校区效果图预览
发布时间:2025-02-19
浏览次数:
10